Alastair Upton Projects

I have a fifteen year background in housing and urban design, with consultancy and project management expertise. Throughout all of this I have remained obsessed with architecture and I never miss an opportunity to draw on a whiteboard or work something out in Sketchup.

Hauraki Townhouses 2026

Design and documentation: Work in progress developed design and resource consent documentation for a 16-unit development in a desirable seaside suburb within Auckland’s Mixed Housing - Urban zone.

Alastair Upton Portfolio Image Alastair Upton Portfolio Image Alastair Upton Portfolio Image Alastair Upton Portfolio Image Alastair Upton Portfolio Image Alastair Upton Portfolio Image Alastair Upton Portfolio Image Alastair Upton Portfolio Image Alastair Upton Portfolio Image Alastair Upton Portfolio Image Alastair Upton Portfolio Image Alastair Upton Portfolio Image

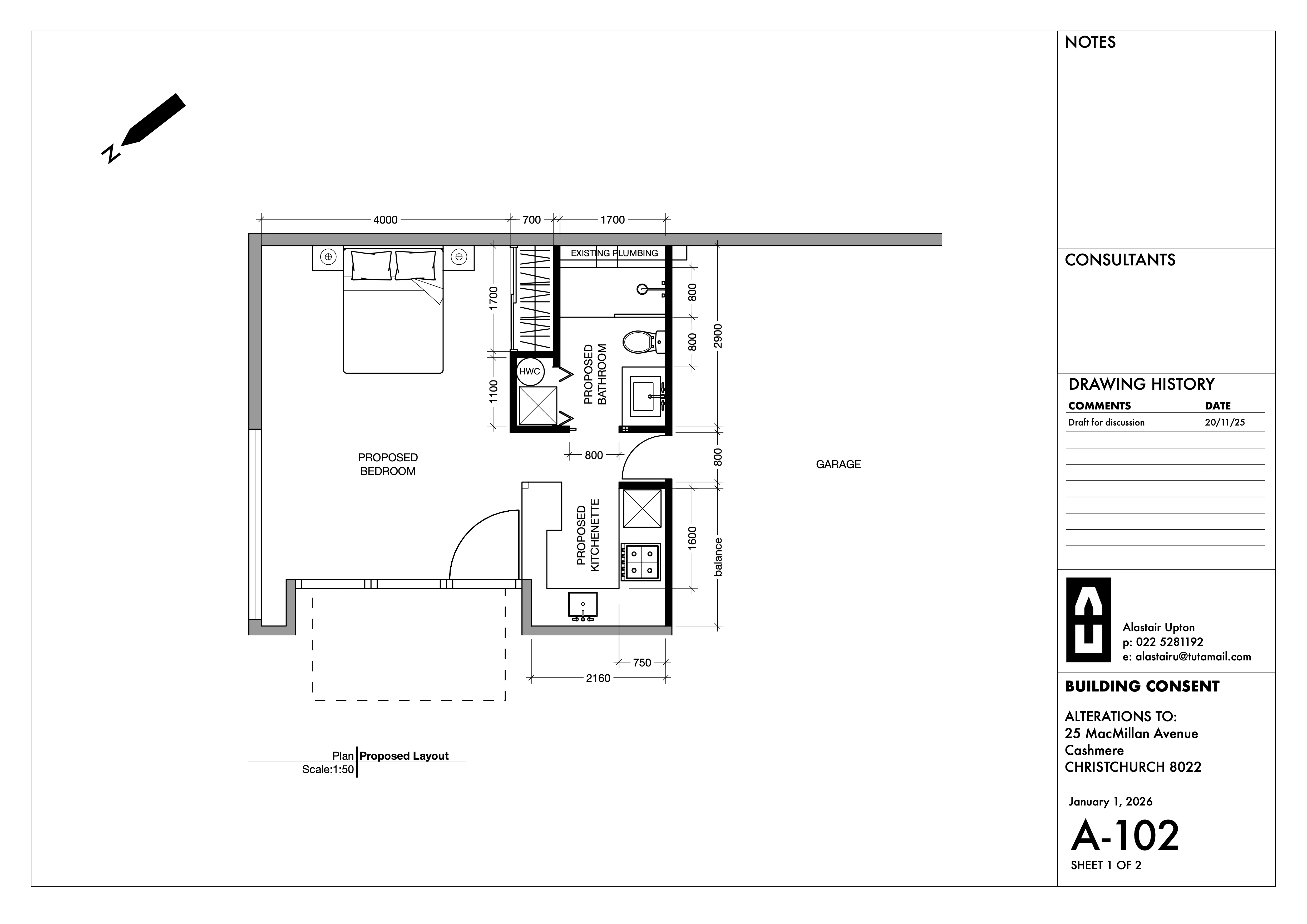
MacMillan Ave 2025

Design and documentation: Work in progress to add an accessible semi-independent living area to the ground level of this 1963 Warren and Mahoney house. I prepared drawings for the owners to discuss with a plumber with a view to applying for a building consent or exemption.

Alastair Upton Portfolio Image Alastair Upton Portfolio Image Alastair Upton Portfolio Image Alastair Upton Portfolio Image

Ngaio Garden 2025

Design and construction: I designed specified and planted this small front garden to meet a brief for a simple, low maintenance front garden to increase street appeal and fill in for the diminished pōhutukawa.

Alastair Upton Portfolio Image Alastair Upton Portfolio Image
Alastair Upton Portfolio Image Alastair Upton Portfolio Image Alastair Upton Portfolio Image
Alastair Upton Portfolio Image Alastair Upton Portfolio Image

Greenhouse 2024

Design and construction: built using 100% recycled materials to create a flexible enclosure for my personal chilli collection.

Alastair Upton Portfolio Image Alastair Upton Portfolio Image
Alastair Upton Portfolio Image Alastair Upton Portfolio Image

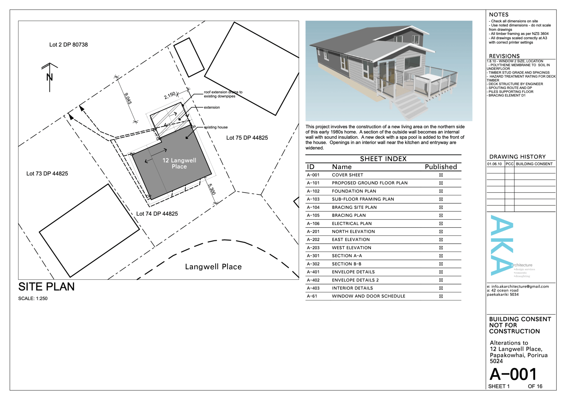
Langwell 2010

Design and documentation: Building Consent for an extension sought and granted - with no RFIs.

Alastair Upton Portfolio Image

Sandhaimedu 2008

Design, fundraising and construction: in collaboration with Tim Gittos of Spacecraft Architects, this building was designed alongside teachers and children to be breezy and adaptable.

Alastair Upton Portfolio Image
Alastair Upton Portfolio Image Alastair Upton Portfolio Image
Alastair Upton Portfolio Image Alastair Upton Portfolio Image

Wakefield Quay 2006

Design and documentation: I designed and detailed the new balustrade for an existing wharf, as a graduate architect at Iriving Jack Architects in collaboration with Ian Jack and a structural engineer.

Alastair Upton Portfolio Image Alastair Upton Portfolio Image
Alastair Upton Portfolio Image Alastair Upton Portfolio Image
Alastair Upton Portfolio Image Alastair Upton Portfolio Image

Don Edwards 2005

Design and construction: a shelter built in a workshop and installed in a wildlife sanctuary as part of a design studio class.

Alastair Upton Portfolio Image Alastair Upton Portfolio Image
Alastair Upton Portfolio Image Alastair Upton Portfolio Image
Alastair Upton Portfolio Image